|
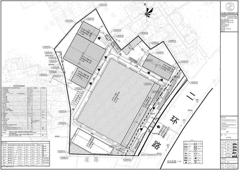
绵竹市自然资源和规划局关于对《四川创浩物业管理有限公司扩建技改项目规划方案》的批前公示
作者:
来源:绵竹市融媒体中心
日期:2026-04-01
依据《中华人民共和国城乡规划法》《四川省城乡规划条例》和四川省自然资源厅办公室《关于进一步加强和规范规划许可和核实工作的通知》(川自然资办函〔2024〕129号)规定,现将以下建设工程设计方案的总平面图予以批前公示。如有意见和建议,请在2026年4月1日至2026年4月10日内以书面形式提交至绵竹市自然资源和规划局办公室。联系电话:0838-6903824 附件:四川创浩物业管理有限公司扩建技改项目规划方案总平面图
绵竹市自然资源和规划局 2026年4月1日
|
