|
绵竹市自然资源和规划局关于对《楚峰羽绒有限责任公司厂房改建项目设计方案》批准的公布
作者:
来源:绵竹市融媒体中心
日期:2026-03-20
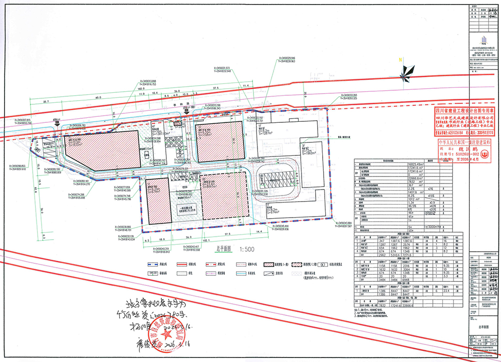
根据《中华人民共和国城乡规划法》《四川省城乡规划条例》的相关要求,现对我局批准的《楚峰羽绒有限责任公司厂房改建项目设计方案》的总平面图向社会进行公布。 楚峰羽绒有限责任公司厂房改建项目位于绵竹市玉泉镇YQ-03-30地块内,建设单位为四川省绵竹市楚峰羽绒有限责任公司。我局于2026年3月16日对该项目设计方案(详见附件)进行了批复。 附件:《楚峰羽绒有限责任公司厂房改建项目》总平面图
绵竹市自然资源和规划局 2026年3月20日
|
