|
绵竹市自然资源和规划局关于对《德阳川发龙蟒新材料有限公司德阳川发龙蟒锂电新能源材料项目(调整方案)设计方案》批准的公布
作者:
来源:绵竹市融媒体中心
日期:2025-11-14
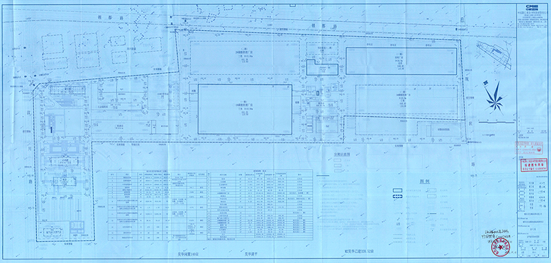
根据《中华人民共和国城乡规划法》《四川省城乡规划条例》的相关要求,现对我局批准的《德阳川发龙蟒新材料有限公司德阳川发龙蟒锂电新能源材料项目(调整方案)设计方案》的总平面图向社会进行公布。 德阳川发龙蟒新材料有限公司德阳川发龙蟒锂电新能源材料项目位于德阿工业园DA-EA-01-04号地块内,建设单位为德阳川发龙蟒新材料有限公司。我局于2025年11月11日对该项目设计方案(详见附件)进行了批复。 附件:《德阳川发龙蟒新材料有限公司德阳川发龙蟒锂电新能源材料项目(调整方案)设计方案》总平面图
绵竹市自然资源和规划局 2025年11月14日
|
