|
绵竹市自然资源和规划局关于对《德阿生态经济产业园——九绵生态旅游产业园4期标准化厂房及配套设施建设项目(JM-B-29)》等两个建筑设计方案的批前公示
作者:
来源:绵竹市融媒体中心
日期:2025-10-21
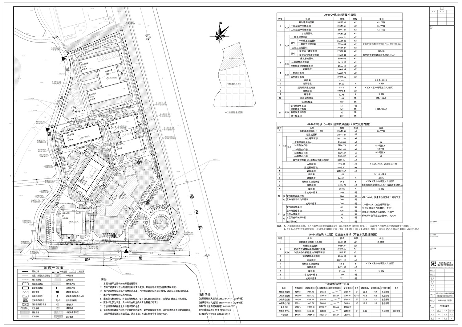
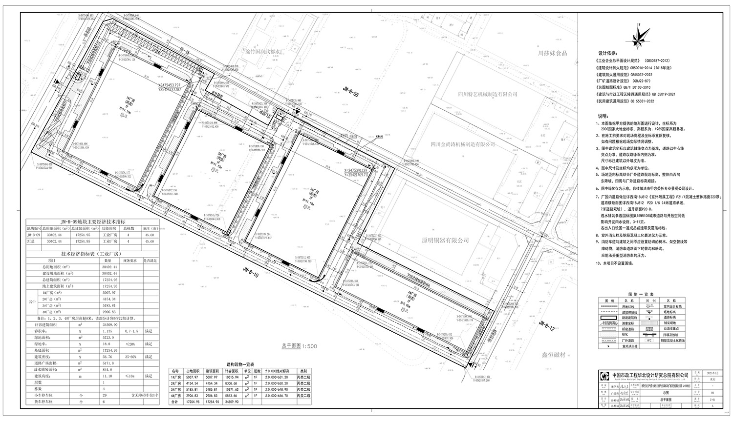
依据《中华人民共和国城乡规划法》《四川省城乡规划条例》和四川省自然资源厅办公室《关于进一步加强和规范规划许可和核实工作的通知》(川自然资办函〔2024〕129号)规定,现将以下两个建设工程设计方案的总平面图予以批前公示。如有意见和建议,请在2025年10月21日至2025年10月27日内以书面形式提交至绵竹市自然资源和规划局办公室。联系电话:0838-6903824 附件: 1、《德阿生态经济产业园——九绵生态旅游产业园4期标准化厂房及配套设施建设项目(JM-B-29)》总平面图
2、《德阿生态经济产业园——九绵生态旅游产业园4期标准化厂房及配套设施建设项目(JM-B-09)》总平面图
绵竹市自然资源和规划局 2025年10月21日
|

