|
绵竹市自然资源和规划局关于对《马武靖私人用房项目建筑方案设计》批准的公布
作者:
来源:绵竹市融媒体中心
日期:2025-09-30
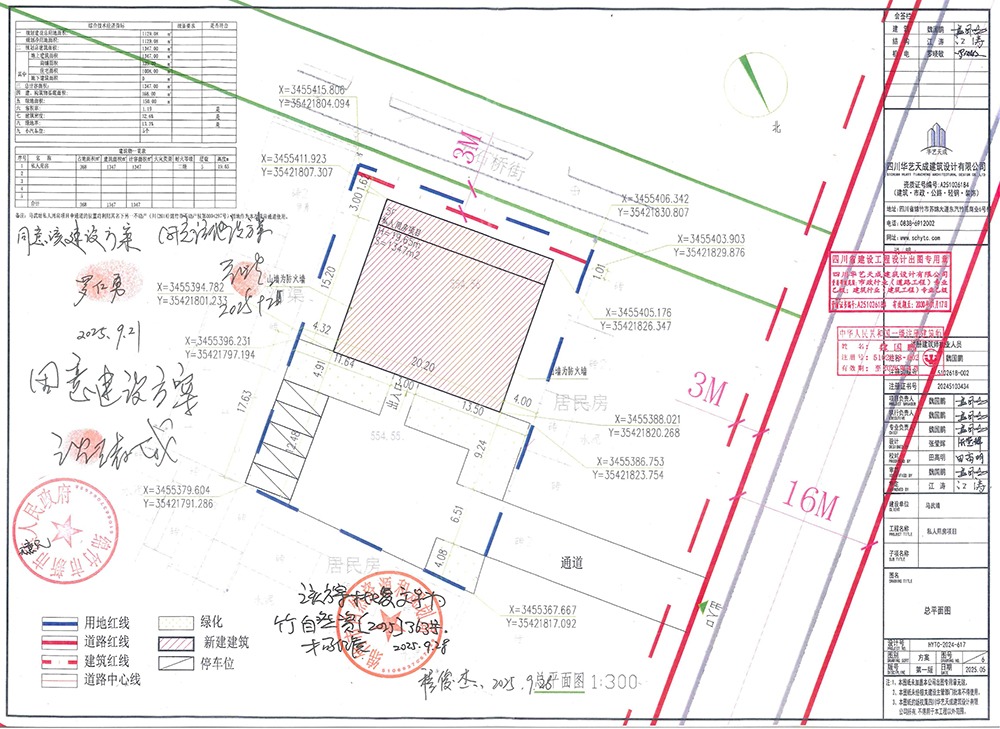
根据《中华人民共和国城乡规划法》《四川省城乡规划条例》的相关要求,现对我局批准的《马武靖私人用房项目建筑方案设计》的总平面图向社会进行公布。 《马武靖私人用房项目建筑方案设计》位于绵竹市新市镇场镇,建设单位为马武靖。我局于2025年9月28日对该项目设计方案(详见附件)进行了批复。 附件:《马武靖私人用房项目建筑方案设计》总平面图
绵竹市自然资源和规划局 2025年9月30日 |
