绵竹市自然资源和规划局关于《四川绵竹古河州科技服务有限公司白酒酿造技改项目方案设计调整》相关事宜的公示
作者:     来源:     日期:2021-02-05    

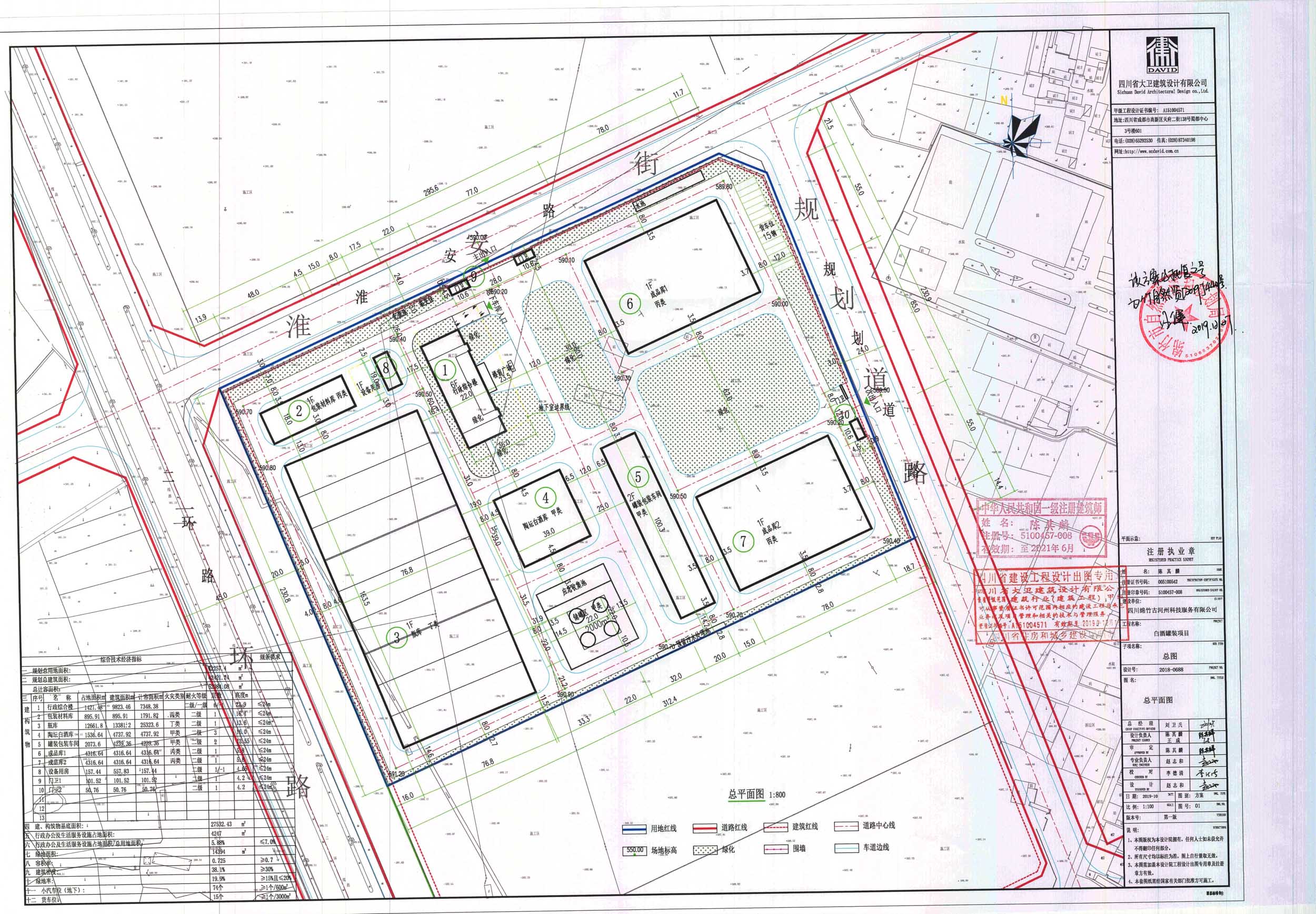
根据四川绵竹古河州科技服务有限公司的申请,拟对已批准的《白酒酿造技改项目方案设计调整》进行局部调整。目前已初步形成调整方案,并于2020年6月16日经专委会审议通过,依据《中华人民共和国城乡规划法》第五十条和《四川省城乡规划条例》第六十九条规定,为征求相关利害关系人意见,现对四川绵竹古河州科技服务有限公司《白酒酿造技改项目方案设计调整》相关事宜公示如下:

一、调整内容

(一)将原白酒罐装项目内的瓶库改建为白酒酿造车间,生产酿造浓香型和酱香型白酒。

(二)将原白酒罐装项目内的包装材料库改建为粮罐库,储藏粮食。

二、详细附图请在绵竹自然资源和规划局微信公众号及政务微博查看(微信:绵竹自然资源,微博:绵竹市自然资源和规划局。)

三、对上述规划如有意见和建议,请在公示时间(2021年2月5日至2021年2月11日)内,以书面形式提交至绵竹市自然资源和规划局办公室。

联系电话:6903824


绵竹市自然资源和规划局

2021年2月4日 

 

古河州调整前

古河州调整后