绵竹市自然资源和规划局关于《德阳蓉发科技有限公司生产汽车专用粉末涂料项目方案设计调整》相关事宜的公示
作者:     来源:     日期:2021-02-05    

根据德阳蓉发科技有限公司的申请,拟对已批准的《生产汽车专用粉末涂料项目方案设计调整》进行局部调整。目前已初步形成调整方案,并于2020年9月25日经专委会审议通过,依据《中华人民共和国城乡规划法》第五十条和《四川省城乡规划条例》第六十九条规定,为征求相关利害关系人意见,现对德阳蓉发科技有限公司《生产汽车专用粉末涂料项目方案设计调整》相关事宜公示如下:

一、调整内容

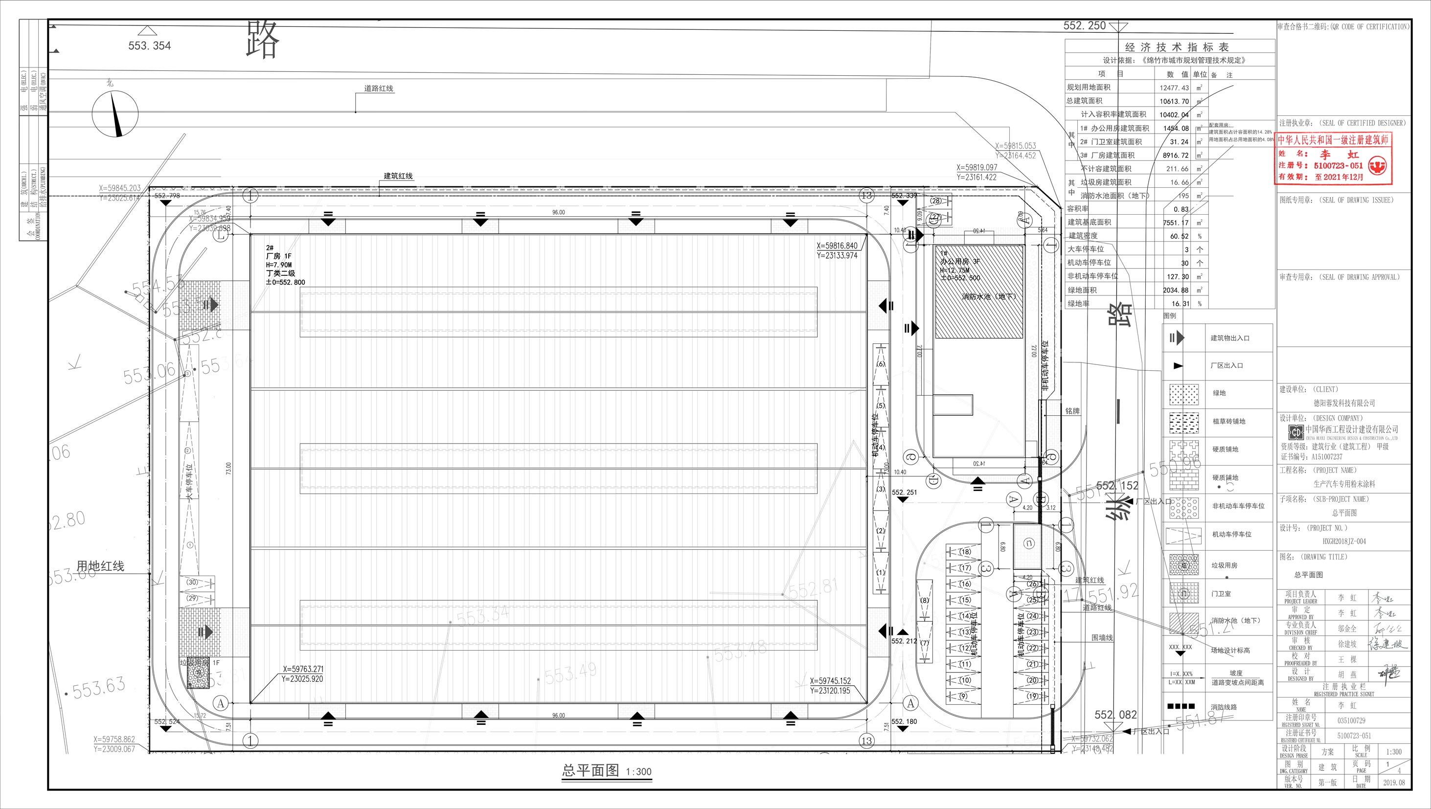
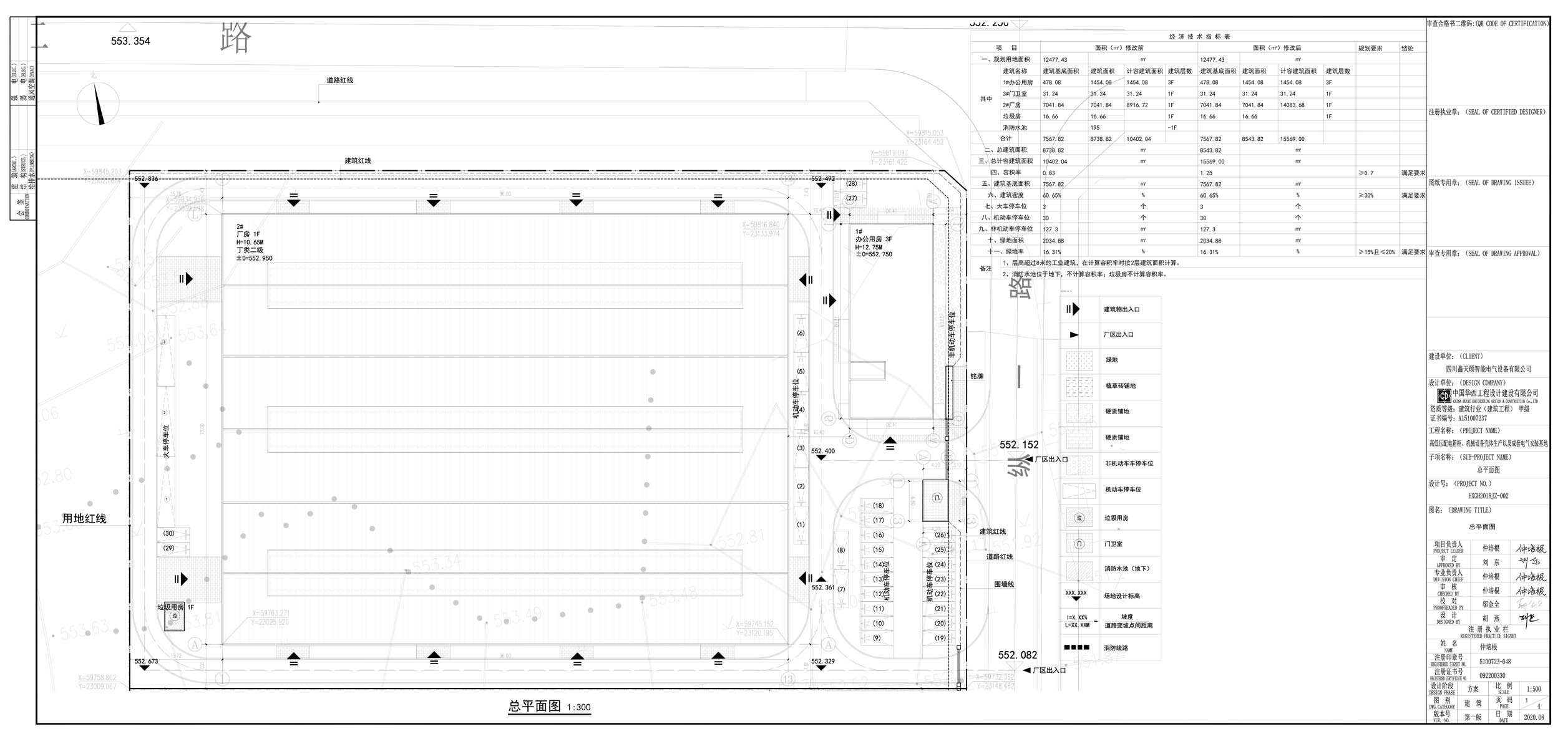
(一)由于该公司生产设备的更新,原厂房设计高度已不满足生产需要,需要将原厂房建筑高度加高2米。

(二)原方案通过时,该公司厂房附近市政管网尚未配套完善,故设计了消防水池。现该公司厂房附近市政管网已配套完善,消防可通过市政管网解决,因此可取消原消防水池。

二、详细附图请在绵竹自然资源和规划局微信公众号及政务微博查看(微信:绵竹自然资源,微博:绵竹市自然资源和规划局。)

三、对上述规划如有意见和建议,请在公示时间(2021年2月5日至2021年2月11日)内,以书面形式提交至绵竹市自然资源和规划局办公室。

联系电话:6903824


绵竹市自然资源和规划局    

2021年2月4日

 

蓉发厂房项目原方案

蓉发厂房项目调整后